Skip to content

Mr PRAKASH RESIDENCE

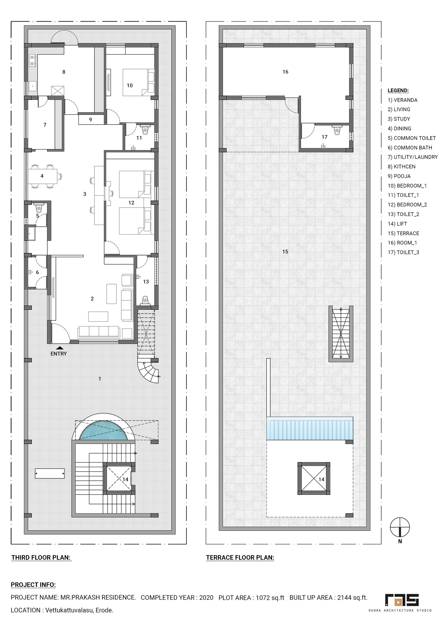
Project Location: Vettukattuvalasu, Erode

Renders

OP 1 – WEST ELEVATION
OP 2 – NORTH WEST CORNER VIEW
OP 2 – WEST ELEVATION VIEW
OP 2 – SOUTH WEST CORNER VIEW
OP 2 – WEST ELEVATION NIGHT LIGHT VIEW

SITE IMAGS

ENTRY
STUDY DINING
STUDY
KITCHEN
OPEN SPACE

FLOOR PLAN

PH VK – Floor plan
  • Contact
  • Know Our Focus

Residence

Commercial

Concept

Educational

Farm House

Interiors

Landscape

Masterplan

Public

Religious

Renovation

© 2026 Rudra Architecture Studio | Design & Developed by  Rubix Media Works